• Áñ°Üã±â Ãß°¡
  • 2025.12.17(¼ö) 15:56
[»çȸ] ±¤Áֽà ½Ö·Éµ¿, 'µû¶æÇÑ 12¿ùÀÇ ¸À, ºÐ½Ä»óȸ' ¼ºÈ²¸® °³ÃÖ |2025. 12.15

[NWS¹æ¼Û=Çѽ¸ñ ±âÀÚ]±¤Áֽà ½Ö·Éµ¿Àº Áö³­ 12ÀÏ ÇàÁ¤º¹Áö¼¾ÅÍ ÁÖÂ÷Àå¿¡¼­ ÀÌ¿ôµ½±â ¼º±Ý ¸¶·Ã Çà»ç ¡®µû¶æÇÑ 12¿ùÀÇ ¸À, ½Ö·Éµ¿ ºÐ½Ä»óȸ¡¯¸¦ °³ÃÖÇß´Ù. À̹ø Çà»ç´Â ¸¶À» °øµ¿Ã¼ÀÇ ³ª´®°ú ¿¬´ë¸¦ ½ÇõÇϱâ À§ÇØ ½Ö·Éµ¿ 6°³ ´Üü(ÅëÀ塦

[»çȸ] ¼­¿ï´õ¼¾Æ®·²Ä¡°úÀÇ¿ø, ±¤Áֽà ÃÊ¿ùÀ¾¿¡ ¼º±Ý 300¸¸ ¿ø ±âŹ |2025. 12.15

[NWS¹æ¼Û=Çѽ¸ñ ±âÀÚ]±¤Áֽà ÃÊ¿ùÀ¾ ½Öµ¿¸®¿¡ À§Ä¡ÇÑ ¼­¿ï´õ¼¾Æ®·²Ä¡°úÀÇ¿ø ±èÁ¤È¯ ´ëÇ¥ ¿øÀåÀº Áö³­ 12ÀÏ ¿¬¸»À» ¸Â¾Æ Áö¿ª ³» ¾î·Á¿î ÀÌ¿ôÀ» µ½±â À§ÇØ ¼º±Ý 300¸¸ ¿øÀ» °æ±â »çȸº¹Áö°øµ¿¸ð±Ýȸ¸¦ ÅëÇØ ÃÊ¿ùÀ¾¿¡ ±âŹÇß´Ù. ±è ´ëÇ¥ ¡¦

[»çȸ] ±¹°ø¸³ ÀåÁö¾î¸°ÀÌÁý, 2025³â À¯¾Æ ±Þ½Ä ¿ì¼ö»ç·Ê °ø¸ðÀü '±³À°ºÎÀå°ü»ó' ¼ö»ó |2025. 12.15

[NWS¹æ¼Û=Çѽ¸ñ ±âÀÚ]±¹°ø¸³ ÀåÁö¾î¸°ÀÌÁýÀÌ ±³À°ºÎ¿Í Çѱ¹±³À°È¯°æº¸È£¿øÀÌ °øµ¿ ÁÖÃÖÇÑ ¡®2025³â À¯¾Æ ±Þ½Ä ¿ì¼ö»ç·Ê °ø¸ðÀü¡¯¿¡¼­ ¿µ¿¹ÀÇ ±³À°ºÎÀå°ü»óÀ» ¼ö»óÇß´Ù. À̹ø °ø¸ðÀüÀº ¡®°Ç°­ÇÑ ¼ºÀå, ¾ÈÀüÇÑ ±Þ½Ä¡¯À» ÁÖÁ¦·Î ¿­·ÈÀ¸¸ç ¡¦

[»çȸ] ±¤ÁÖ½Ã, 2025³â 12¿ù Á¤±âºÐ ÀÚµ¿Â÷¼¼ 110¾ï ¿ø ºÎ°ú |2025. 12.15

[NWS¹æ¼Û=Çѽ¸ñ ±âÀÚ]±¤Áֽô 2025³â 12¿ù Á¤±âºÐ ÀÚµ¿Â÷¼¼ 9¸¸ 1õ¿© °Ç, ÃÑ 110¾ï ¿øÀ» ºÎ°úÇß´Ù°í 15ÀÏ ¹àÇû´Ù. À̹ø ÀÚµ¿Â÷¼¼ ºÎ°ú ´ë»óÀº 12¿ù 1ÀÏ ±âÁØ ±¤Áֽÿ¡ µî·ÏµÈ ÀÚµ¿Â÷, ¹è±â·® 125cc Ãʰú ÀÌ·ûÂ÷, ´ýÇÁÆ®·°¡¤ÄÜÅ©¸®Æ®¹Í¡¦

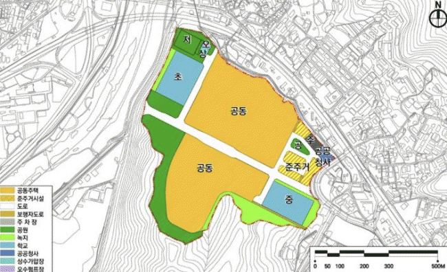
[»çȸ] ±¤ÁÖ½Ã, ½Ö·ÉÁö±¸ µµ½Ã°³¹ß»ç¾÷ °æ±âµµ ±¸¿ª ÁöÁ¤ °í½Ã |2025. 12.15

[NWS¹æ¼Û=Çѽ¸ñ ±âÀÚ]±¤Áֽô ½Ö·Éµ¿ ÀÏ´ë¿¡ ÃßÁø ÁßÀÎ ¡®½Ö·ÉÁö±¸ µµ½Ã°³¹ß»ç¾÷¡¯ÀÇ ±¸¿ª ÁöÁ¤ ¹× °³¹ß°èȹÀÌ 12¿ù16ÀÏ ÀÚ·Î °æ±âµµ·ÎºÎÅÍ °í½ÃµÉ ¿¹Á¤À̶ó°í 15ÀÏ ¹àÇû´Ù. À̹ø µµ½Ã°³¹ß»ç¾÷Àº ½Ö·ÉÁö±¸ µµ½Ã°³¹ß»ç¾÷ ÃßÁøÀ§¿øÈ¸°¡ ¡¦

[»çȸ] ÆòÅýà ½ÅÆòµ¿ »õ¸¶À»ºÎ³àȸ, ¿¬¸» ¸ÂÀÌ ÀÌ¿ôµ½±â ¼º±Ý ±âºÎ |2025. 12.15

[NWS¹æ¼Û=Çѽ¸ñ ±âÀÚ]ÆòÅýà ½ÅÆòµ¿ »õ¸¶À»ºÎ³àȸ´Â Áö³­ 12ÀÏ Áö¿ª ³» ¾î·Á¿î Àú¼Òµæ °¡±¸ Áö¿øÀ» À§ÇÑ ¼º±Ý 100¸¸ ¿øÀ» ÆòÅÃÇູ³ª´®º»ºÎ¿¡ Àü´ÞÇß´Ù. À̹ø ¼º±ÝÀº ¿¬¸»À» ¸Â¾Æ Áö¿ª»çȸ¿¡ µû¶æÇÑ ¿Â±â¸¦ ÀüÇϱâ À§ÇÑ »õ¸¶À»ºÎ³àȸÀÇ¡¦

[»çȸ] ÆòÅýà ¹Ù·Îe¸¶Æ®, ¿¬¸» ¸Â¾Æ ½Ò 100Æ÷ ±âºÎ |2025. 12.15

[NWS¹æ¼Û=Çѽ¸ñ ±âÀÚ]Áö³­ 12ÀÏ, ¹Ù·Îe¸¶Æ®´Â ¿¬¸»À» ¸Â¾Æ Áö¿ª ³» Ãë¾à°èÃþÀ» À§ÇØ ½Ò 10§¸ 100Æ÷¸¦ ÆòÅýà ¼ÛºÏµ¿ ÇàÁ¤º¹Áö¼¾ÅÍ¿¡ ±âºÎÇß´Ù. À̳¯ ±âºÎµÈ ½ÒÀº ¼ÛºÏµ¿ °ü³» Àú¼Òµæ °¡±¸¿Í º¹Áö »ç°¢Áö´ë¿¡ ³õÀÎ ÀÌ¿ôµé¿¡°Ô Àü´ÞµÉ ¿¹¡¦

[»çȸ] ÆòÅýà ¼­Á¤¸® ¹Î¼Ó5ÀÏÀå 'Èñ¸ÁÇØ' ȸ¿ø, ¹é¹Ì ±âºÎ·Î ÀÌ¿ô»ç¶û ½Çõ |2025. 12.15

[NWS¹æ¼Û=Çѽ¸ñ ±âÀÚ]ÆòÅýà ¼­Á¤¸® ¹Î¼Ó5ÀÏÀå ¡®Èñ¸ÁÇØ¡¯´Â ¿¬¸»À» ¸Â¾Æ Áö³­ 12ÀÏ Áß¾Óµ¿ ÇàÁ¤º¹Áö¼¾Å͸¦ ¹æ¹®ÇØ ¡®»ç¶ûÀÇ ½Ò ³ª´®¡¯Àü´Þ½ÄÀ» °®°í ¹é¹Ì 10§¸ 50Æ÷¸¦ ±âºÎÇß´Ù. À̹ø ±âºÎ´Â Áö³­ÇØ¿¡ ÀÌ¾î ¿ÃÇØ¿¡µµ °è¼ÓµÈ ³ª´® Ȱµ¿¡¦

[»çȸ] ÆòÅýà ¢ß¼¼¿øÀüÀÚ¿Í ¿ì½Å¿¡³ÊÁö¢ß, ¹é¹Ì 220Æ÷ ±âºÎ |2025. 12.15

[NWS¹æ¼Û=Çѽ¸ñ ±âÀÚ]ÆòÅÃ½Ã ÆØ¼ºÀ¾ ÃßÆÈ»ê¾÷´ÜÁö¿¡ ÀÖ´Â ¢ß¼¼¿øÀüÀÚ¿Í ¿ì½Å¿¡³ÊÁö¢ß¿¡¼­ Áö³­ 12ÀÏ, ÆØ¼ºÀ¾ ÇàÁ¤º¹Áö¼¾Å͸¦ ¹æ¹®ÇØ ¿¬¸»¿¡ Ãë¾à°èÃþÀ» À§ÇØ »ç¿ëÇØ ´Þ¶ó¸ç ¹é¹Ì 10§¸ 220Æ÷¸¦ ±âºÎÇß´Ù. À̳¯ Àü´Þ½Ä¿¡¼­ À̸í±â ´ëÇ¥´Â¡¦

[»çȸ] ÆòÅÃ½Ã ÆØ¼ºÃ»¼Ò³â¹®È­ÀÇÁý, 'ã¾Æ°¡´Â û¼Ò³â ³ëµ¿ÀαÇ' ±³À° ¼ºÈ²¸® Á¾·á |2025. 12.15

[NWS¹æ¼Û=Çѽ¸ñ ±âÀÚ](Àç)ÆòÅýÃû¼Ò³âÀç´Ü ÆØ¼ºÃ»¼Ò³â¹®È­ÀÇÁýÀº 2025³â ÇÑ ÇØ µ¿¾È °ü³» Áß°íµîÇб³ û¼Ò³âÀ» ´ë»óÀ¸·Î ÃßÁøÇÑ ¡®Ã£¾Æ°¡´Â û¼Ò³â ³ëµ¿À뱂 ±³À°¡¯À» ¼ºÈ²¸®¿¡ ¸¶¹«¸®Çß´Ù°í ¹àÇû´Ù. À̹ø ±³À°Àº û¼Ò³âµéÀÌ ½ÇÁ¦ »ýȰ¡¦

[»çȸ] ÆòÅýà µå¸²½ºÅ¸Æ®, ºÎ¸ð¿ª·® °­È­¸¦ À§ÇÑ ÀÚÁ¶¸ðÀÓ ¿î¿µ |2025. 12.15

[NWS¹æ¼Û=Çѽ¸ñ ±âÀÚ]ÆòÅýà µå¸²½ºÅ¸Æ®´Â Áö³­ 1ÀϺÎÅÍ 12ÀϱîÁö 2ÁÖ°£ »ç·Ê°ü¸® ¾Æµ¿ÀÇ ¾çÀ°ÀÚ¸¦ ´ë»óÀ¸·Î ºÎ¸ð¿ª·® °­È­¸¦ À§ÇÑ ºÎ¸ðÀÚÁ¶¸ðÀÓÀ» ÁøÇàÇß´Ù. À̹ø ÀÚÁ¶¸ðÀÓÀº ÀÎÅͳÝ/½º¸¶Æ®Æù °úÀÇÁ¸ÀÇ ÁÖ¿ä Áõ»ó°ú Àڳ࿡°Ô ¹ÌÄ¡´Â ¿µ¡¦

[»çȸ] Æ÷õ½Ãû¼Ò³â±³À°¹®È­¼¾ÅÍ Ã»¼Ò³â¹æ°úÈľÆÄ«µ¥¹Ì ¹æ¼Û´Ü, ¾î¸£½Å À§ÇÑ Àç´É±âºÎȰµ¿ ÆîÃÄ |2025. 12.15

[NWS¹æ¼Û=Çѽ¸ñ ±âÀÚ]Æ÷õ½Ãû¼Ò³âÀç´Ü Æ÷õ½Ãû¼Ò³â±³À°¹®È­¼¾ÅÍ Ã»¼Ò³â¹æ°úÈľÆÄ«µ¥¹Ì ¼Ò¼Ó ¡®¹æ¼Û´Ü¡¯Àº Áö³­ 12ÀÏ ½á¹ÌÆ®³ëÀÎÁÖ°£º¸È£¼¾Å͸¦ ¹æ¹®ÇØ ¾î¸£½ÅÀ» À§ÇÑ Àç´É±âºÎȰµ¿À» ÁøÇàÇß´Ù. À̹ø Ȱµ¿Àº ¹æ¼Û´ÜÀÇ ÀÚü ±âȹ ÇÁ·Î±×¡¦

[»çȸ] Æ÷õ½Ã ¿µºÏ¸é ±â¼ö¿¬ÇÕȸ¡¤Ã»³âȸ, Ãë¾à°èÃþ À§ÇÑ ¿¬Åº ³ª´® ºÀ»çȰµ¿ Àü°³ |2025. 12.15

[NWS¹æ¼Û=Çѽ¸ñ ±âÀÚ]¿µºÏ¸é ÇàÁ¤º¹Áö¼¾ÅÍ´Â Áö³­ 14ÀÏ ¿µºÏ¸é ±â¼ö¿¬ÇÕȸ¿Í ¿µºÏ¸é û³âȸ°¡ ¿¬Åº 6,900Àå°ú ¶ó¸é 46¹Ú½º, ½Ò 46Æ÷¸¦ ±âŹÇß´Ù°í ¹àÇû´Ù. À̳¯ ÈÄ¿ø¹°Ç° ±âʰú ÇÔ²² ¿µºÏ¸é ±â¼ö¿¬ÇÕȸ¿Í ¿µºÏ¸é û³âȸ, 1±â°©¿©´ÜÀº ¡¦

[»çȸ] Æ÷õ Çϵ¿°Ç¼³¡¤¼­ÀΰǼ³¡¤ÇüÁø°Ç¼³, Áö¿ª»çȸ À§ÇØ µû¶æÇÑ ³ª´® |2025. 12.15

[NWS¹æ¼Û=Çѽ¸ñ ±âÀÚ]Æ÷õ½Ã À̵¿¸é ÇàÁ¤º¹Áö¼¾ÅÍ´Â ¢ßÇϵ¿°Ç¼³, ¢ß¼­ÀΰǼ³, ¢ßÇüÁø°Ç¼³ÀÌ Áö¿ª ³» ¾î·Á¿î ÀÌ¿ôÀ» µ½±â À§ÇØ °æ±â»çȸº¹Áö°øµ¿¸ð±Ýȸ¿¡ °¢°¢ 100¸¸ ¿ø¾¿, ÃÑ 300¸¸ ¿øÀÇ ¼º±ÝÀ» ±âºÎÇß´Ù°í ¹àÇû´Ù. ¼º±ÝÀº °Ü¿ïö ÇÑÆÄ¡¦

[»çȸ] Æ÷õ½Ã ±º³»¸é µ¹´ãÁý 2È£Á¡, ¿¬¸» ¸Â¾Æ ¾î¸£½Å °¥ºñÅÁ ³ª´® ºÀ»ç ½Çõ |2025. 12.15

[NWS¹æ¼Û=Çѽ¸ñ ±âÀÚ]Æ÷õ½Ã ±º³»¸é ÇàÁ¤º¹Áö¼¾ÅÍ´Â Áö³­ 14ÀÏ °ü³» ¼ÒÀçÇÑ µ¹´ãÁý 2È£Á¡ÀÌ Áö¿ª ¾î¸£½ÅµéÀ» À§ÇÑ °¥ºñÅÁ ³ª´® ºÀ»ç¸¦ ÁøÇàÇÏ¸ç µû¶æÇÑ Áö¿ª ³ª´®À» ½ÇõÇß´Ù°í ¹àÇû´Ù. µ¹´ãÁý 2È£Á¡Àº À̳¯ ¸¶À» ¾î¸£½Å 300¿© ¸íÀ» ÃÊ¡¦

   4142434445464748495051525354555657585960 
Ãֽűâ»ç ¸¹ÀÌ º» ±â»ç
ȸ»ç¼Ò°³È¸¿ø¾à°ü°³ÀÎÁ¤º¸º¸È£Á¤Ã¥Á¦ÈÞ¹®ÀǰíÃæÃ³¸®Àα¤°í¹®ÀDZâ»çÁ¦º¸
NWS¹æ¼Û£ü µî·ÏÀÏ : 2017³â 11¿ù 14ÀÏ | µî·Ï¹øÈ£ : °æ±â ¾Æ52016 ´ëÇ¥/¹ßÇàÀÎ : Çѽ¸ñ / ÆíÁýÀÎ : Çѽ¸ñ / û¼Ò³âº¸È£Ã¥ÀÓÀÚ /±èÂ÷¿µ
¹ßÇà¼Ò: (¿ì)11924 °æ±âµµ ±¸¸®½Ã ¾È°ñ·Î7¹ø±æ 5 ÁöÃþ | ´ëÇ¥ÀüÈ­: 1544-9741 | ÆÑ½º031-516-4801 | E-mail : seungmok0202@daum.net
[ NWS¹æ¼Û ]¸¦ ÅëÇØ Á¦°øµÇ´Â ¸ðµç ÄÜÅÙÃ÷´Â ¹«´Ü »ç¿ë, º¹»ç, ¹èÆ÷ ½Ã ÀúÀ۱ǹý¿¡ ÀúÇØµÇ¸ç ¹ýÀû Á¦À縦 ¹ÞÀ» ¼ö ÀÖ½À´Ï´Ù.